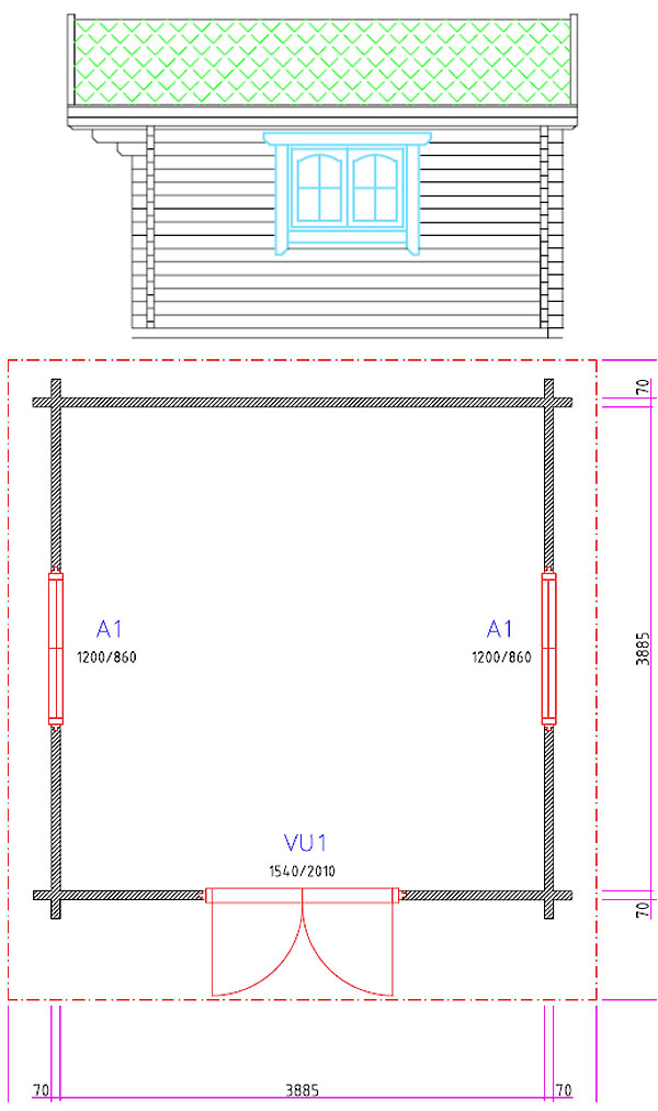
Stella Andover Floor Plan
< Previous
Next >